Ficha
Solar con licencia y proyecto en Son Serralta
Puigpunyent (Puigpunyent) - REF. 3690
venta: 350.000 €
Descripción


TERRENO con PROYECTO CON LICENCIA DE OBRA.


Sumérgete en la auténtica esencia de Mallorca explorando Son Serralta, un tesoro oculto en la Sierra Tramuntana. Con más de 300 días de sol al año y sus magníficas calas, este rincón mediterráneo ofrece posibilidades casi infinitas para vivir experiencias inolvidables.

Ubicado entre las majestuosas montañas de la isla, Son Serralta se distingue por su riqueza en naturaleza y ambiente tranquilo. La Sierra de Tramuntana te invita a descubrir la belleza virgen de la región, mientras que las vistas panorámicas te dejarán sin aliento.

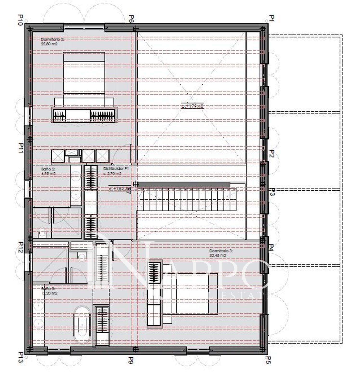
La propiedad en Son Serralta, con sus 3 dormitorios, cada uno con baño en suite, es una opción excepcional tanto para uso personal como inversión. Este hogar combina el encanto de la arquitectura mallorquina con toques modernos, creando un ambiente luminoso y acogedor. Desde sus espacios interiores, se disfrutan vistas impresionantes hacia las majestuosas montañas que rodean la zona.


Destacando por su diseño, la residencia se distingue por una terraza espaciosa, un porche acogedor y una piscina tipo infinity, todo diseñado para aprovechar al máximo la generosa presencia del sol mediterráneo. Estos elementos no solo realzan la experiencia de vida, sino que también ofrecen un atractivo adicional a la propiedad.


Además, la comodidad se maximiza con un estacionamiento subterráneo doble y un trastero, proporcionando soluciones prácticas para el día a día. Este desarrollo inmobiliario de nueva construcción se encuentra estratégicamente ubicado, a solo 10 minutos a pie de Puigpunyent, permitiendo acceso fácil a los encantos del pueblo, y a 20 minutos en coche del vibrante centro de Palma, agregando una conveniente conexión con la vida urbana. Una oportunidad única para aquellos que buscan un hogar que combine elegancia, comodidad y la auténtica belleza de Mallorca.

Características más destacada del proyecto.

CUBIERTA :Teja cerámica árabe proporcionando un toque tradicional y duradero.

FACHADA : Acabado de mortero de cal con incrustaciones de piedra en gajos de 3-4 cm de diámetro, fusionando la estética contemporánea con elementos naturales.

VENTANAS Y BALCONERAS: Marcos de aluminio en color gris antracita para las ventanas y balconeras, con persianas de aluminio en tono RAL 7032, garantizando un diseño elegante y resistente.

RECERCOS DE ABERTURAS: Elaborados con mortero de cal liso, sin incrustaciones de piedra, aportando un toque moderno y pulido.

CERRAJERÍA: Acero simple lacado en color oscuro, preferentemente gris-negro, brindando resistencia y estética contemporánea.

BANCALES EXTERIORES: Piedra con junta vacía para los bancales exteriores fusionando la solidez con un diseño armonioso.

PAVIMENTO ÁREA RODADA: Solera de hormigón desactivado, proporcionando resistencia y durabilidad en áreas de uso constante.

PAVIMENTO EXTERIOR: Piedra Zarci o similar en formato 80x80, combinando elegancia y practicidad en los espacios exteriores.

REVESTIMIENTO INTERIOR PISCINA: Baldosa de 10x10cm en tonalidad verdosa, creando un ambiente refrescante y visualmente atractivo.

ALBARDILLA PISCINA PERIMETRAL: Utilización de la misma piedra y a la misma cota que el pavimento, logrando continuidad estética y funcionalidad. 

PUERTA DEL GARAJE: Confeccionada en aluminio gris antracita, fusionando resistencia con diseño contemporáneo. 

PUERTA DE ENTRADA PRINCIPAL: De madera, otorgando calidez y singularidad a la entrada principal. 

PUERTAS INTERIORES DE MADERA: Diseño impecable con marco a ras de pared, fusionando funcionalidad y estética. 

VIGAS DE MADERA: Elemento arquitectónico distintivo, proporcionando calidez y carácter a los espacios. 

PAVIMENTO INTERIOR DE MICROCEMENTO: Superficie moderna y vanguardista, un tributo a la innovación y la durabilidad. 

REVESTIMIENTO INTERIOR DE PISCINA: Baldosa de 10x10cm en tonalidad verdosa, creando un oasis de frescura y sofisticación. 

MECANISMOS BTICINO LIVINGLIGHT BLANCO: Tecnología y estilo convergen en estos mecanismos, garantizando una experiencia elegante y eficiente. 

ILUMINACIÓN PERSONALIZADA: Estamos definiendo un modelo de iluminación fija para realzar cada rincón de tu hogar. 

EQUIPAMIENTO DE BAÑOS DE ALTA GAMA:Lavabo bajo encimera Inspira de Roca, encimera de piedra, y sanitario con cisterna empotrada modelo Ona de Roca. Un estándar de elegancia y funcionalidad. 

DUCHA DE PIEDRECITAS Y PAREDES DE MICROCEMENTO: La ducha se convierte en un rincón de bienestar con un plato de ducha de piedrecitas y paredes de microcemento, fusionando texturas y modernidad. 

BARANDILLA INTERIOR DE ACERO LACADO BLANCO: Una pieza que no solo brinda seguridad, sino que también añade un toque de modernidad y luminosidad. 

VIGAS DE ACERO VISTAS INTERIORES: Detalles de acero lacado blanco que resaltan la arquitectura, fusionando elegancia con un toque industrial. 

RODAPIÉ OCULTO RANHURADO: Detalles ocultos que subrayan la pulcritud del diseño interior, un toque final sutil y refinado. 

No te pierdas esta oportunidad y contacta con nosotros para más informaciones.

Donde hay Nappo Hay Casa.

Características
Precio Venta 350.000 €
Parcela 1.535 m2
Luz
Agua
Escalas de eficiencia



Contáctanos

Si deseas más información sobre esta propiedad, por favor, rellena el formulario.

 Sí, he leído y/o acepto las Condiciones de uso y la Política de privacidad