Ficha
Espacioso y luminoso piso en Calle Aragón con terraza, parking y trastero
Palma De Mallorca - REF. 4487
100 m2 3 2 1 1
venta: 450.000 €
Descripción

Nappo Real Estate tiene el placer de presentaros este amplio y luminoso piso con terraza y zonas ajardinadas comunitarias, ubicado en una primera planta con ascensor dentro de una finca moderna del año 2001. El edificio cuenta con doble acceso desde Calle Aragón y Calle Gabriel Alzamora, y se sitúa en una zona residencial consolidada y muy bien comunicada, con todos los servicios necesarios a pocos minutos: supermercados, colegios, comercios y transporte público. Un entorno cómodo y práctico, ideal para familias que buscan calidad de vida sin renunciar a una excelente conexión con el resto de la ciudad.


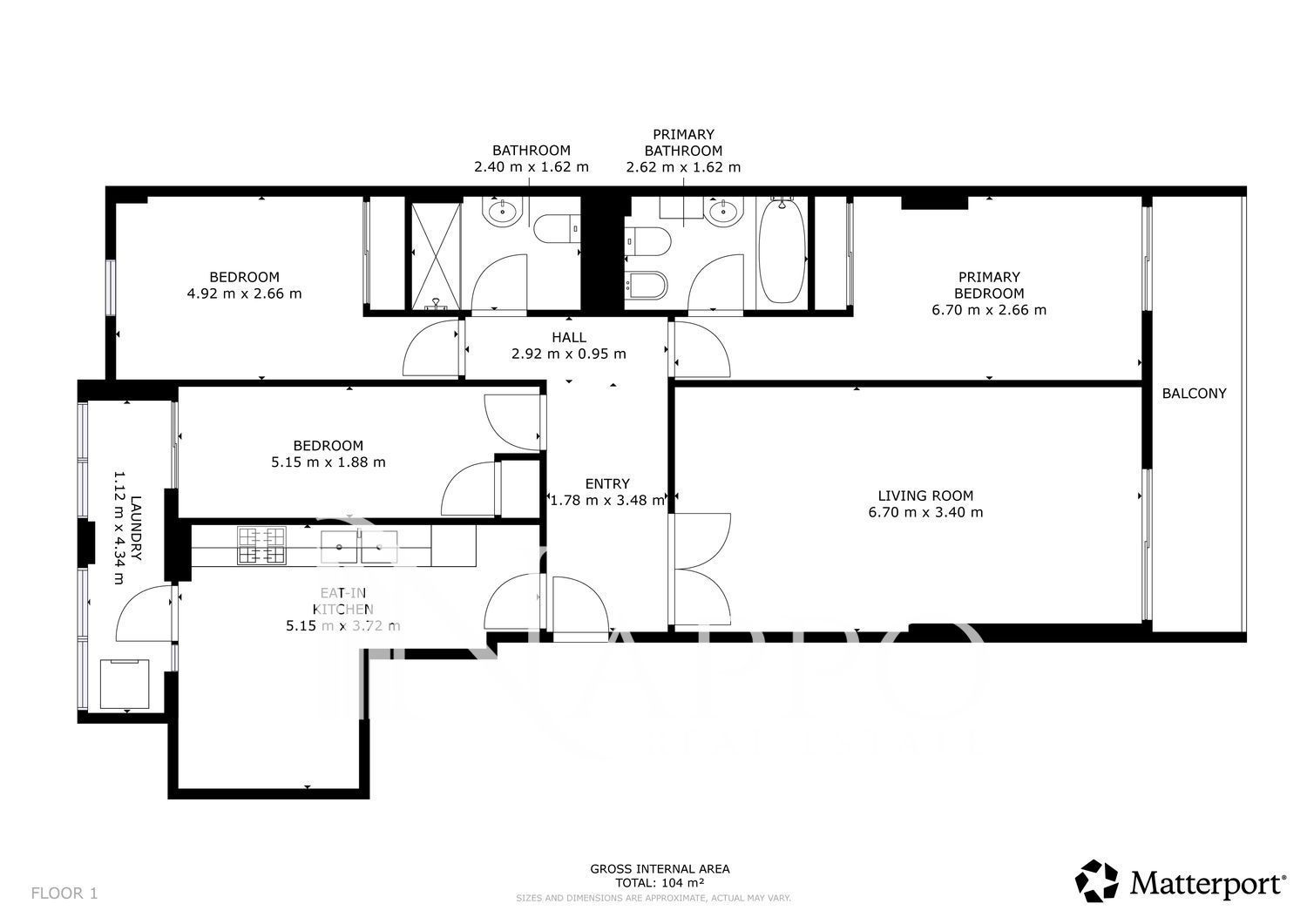
La vivienda dispone de 100 m² construidos, con una distribución funcional y equilibrada. Cuenta con tres dormitorios, dos de ellos dobles y uno individual, todos con armarios empotrados. El dormitorio principal destaca por su amplitud y dispone de baño en suite.

El piso ofrece un espacioso y muy luminoso salón-comedor, con salida directa a una agradable terraza de 14 m², perfecta para disfrutar del exterior durante todo el año. La cocina es independiente, tipo office, totalmente amueblada, y se complementa con una coladuría independiente, aportando comodidad y espacio adicional. La vivienda cuenta con dos baños completos, amplios y bien distribuidos.

Además, la propiedad incluye plaza de parking y un amplio trastero, ofreciendo soluciones de almacenamiento y comodidad para el día a día.


Una vivienda completa, con espacios exteriores, zonas comunes, parking y trastero, en una ubicación práctica y bien conectada. No dejes pasar esta oportunidad y contacta con nosotros para solicitar más información o concertar una visita.

Características
Precio Venta 450.000 €
Año de construcción 2001
Construidos 100 m2
Útiles 90 m2
Dormitorios 3
Baños 2
Trastero
Terraza
Altura/Planta 1
Estado Buen estado
Ascensor
Garaje
Zonas comunes
Adaptado
Calificación Energética (E) VER
Luz
Gas
Agua
Escalas de eficiencia


-
-

Contacta con tu asesor
Ommy Tabli
Contáctanos

Si deseas más información sobre esta propiedad, por favor, rellena el formulario.

 Sí, he leído y/o acepto las Condiciones de uso y la Política de privacidad