Ficha
ESPECTACULAR DÚPLEX EN CALVIÀ
Calvià (Magaluf) - REF. 4329
92 m2 2
venta: 195.000 €
Descripción

Una oportunidad única en el corazón de Calvià. Se trata de un local tipo loft, totalmente reformado y de diseño contemporáneo, con entrega prevista para enero de 2026. Su ubicación es excepcional: a tan solo 30 metros de Punta Ballena, lo que permite disfrutar de todo el ocio de Magaluf manteniendo la tranquilidad, gracias a su posición estratégica en una calle residencial privada y a su insonorización total.

Actualmente cuenta con uso de local, aunque existe la posibilidad de tramitar un cambio de uso a vivienda, un proceso que dependerá del ayuntamiento correspondiente. El precio actual corresponde al valor como local, lo que convierte esta propiedad en una excelente inversión, ya que su valor como vivienda sería notablemente superior.

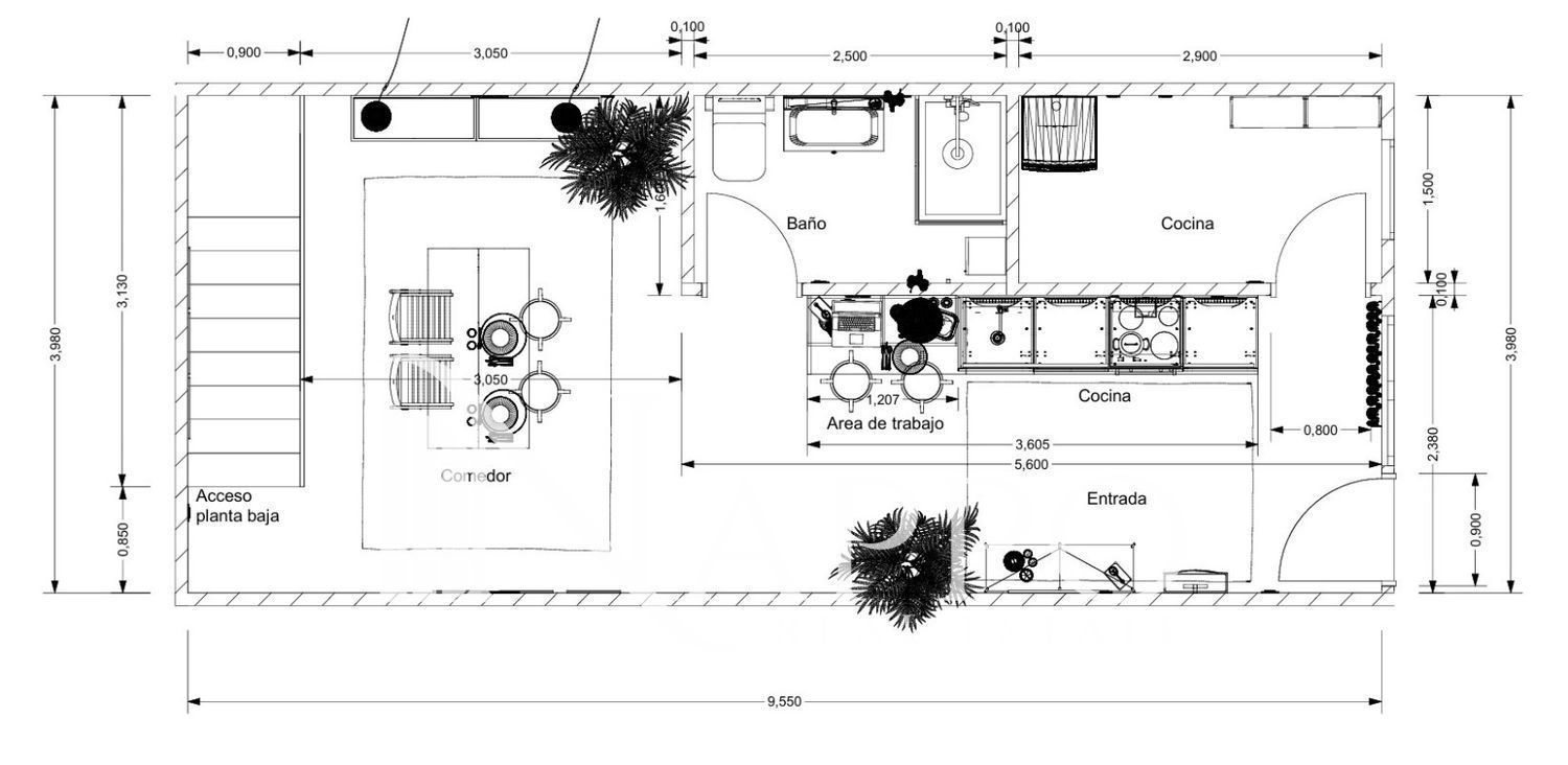
La propiedad cuenta con una planta baja de 45 m² con acceso directo desde una calle residencial privada, cocina completamente equipada, coladuría y dos baños de alta gama. En el nivel inferior se encuentra un sótano de casi 50 m², un espacio excepcional con techos de tres metros, luz natural, circulación de aire, climatización y chimenea ecológica, ideal para utilizar como zona de descanso, coworking, área profesional o espacio de ocio.

La propiedad se entregará completamente decorada por un equipo de interioristas de prestigio en Baleares, con un proyecto pensado para aportar elegancia, funcionalidad y estilo.


Uso actual y potencial

Su configuración lo convierte en un espacio perfecto para:

• Despachos profesionales

• Coworking de pequeño formato

• Alojamiento para trabajadores de la zona

• Espacio híbrido de trabajo/descanso

Todo ello con la ventaja de ser una propiedad a precio de local, con un potencial de revalorización significativo.


Condiciones de compra

• Ideal para compradores con capacidad económica demostrada.

• La financiación habitual para locales cubre entre el 50% y el 60% del precio, dependiendo de la entidad bancaria.


Donde hay Nappo, hay casa.

Para más información o para concertar una visita, no dudes en ponerte en contacto con nosotros. Estaremos encantados de ayudarte.

Características
Precio Venta 195.000 €
Precio/m² 2.120
Construidos 92 m2
Útiles 90 m2
Baños 2
Aire acondicionado
Calificación Energética En trámite
Luz
Agua
Escalas de eficiencia



Contacta con tu asesor
Anny Félix
Contáctanos

Si deseas más información sobre esta propiedad, por favor, rellena el formulario.

 Sí, he leído y/o acepto las Condiciones de uso y la Política de privacidad