VENDIDO POR NAPPO
Exclusiva casa independiente contemporánea con piscina y garaje en Es Pla de na Tesa
Marratxí - REF. 4166
241 m2 4 4 1
venta: 1.099.000 €
Descripción
NAPPO REAL ESTATE PRESENTA esta magnífica casa independiente ubicada en Es Pla de na Tesa, a pocos minutos de Palma, un enclave que combina el encanto tranquilo de un pueblo mallorquín con la cercanía a todos los servicios esenciales.

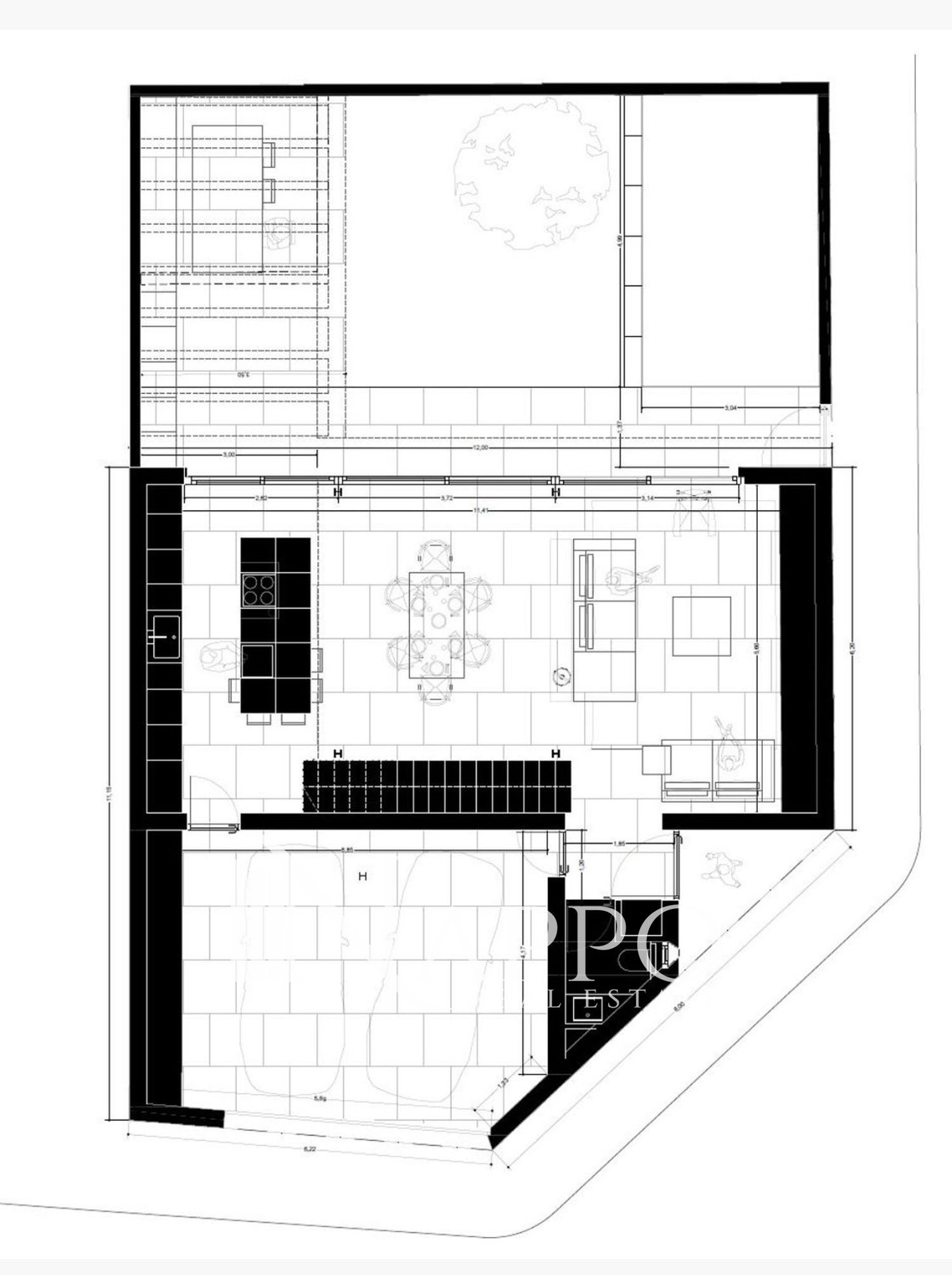
Con un diseño contemporáneo a cargo del reconocido estudio Munarq Arquitectes, esta propiedad construida en 2019 destaca por su arquitectura de líneas limpias y espacios cuidadosamente distribuidos en tres plantas. Cuenta con 241 m² construidos sobre una parcela de 201 m², con orientación este y oeste que asegura luz natural durante todo el día.

La vivienda ofrece 4 amplias habitaciones dobles con armarios empotrados, 4 baños completos (tres baños más un aseo de cortesía) y un luminoso salón con cocina abierta e isla central, perfecto para compartir momentos en familia o con amigos. Todo ello climatizado mediante calefacción central y un sistema por conductos Mitsubishi frío/calor, garantizando confort durante todo el año.

En el exterior, una espectacular terraza ajardinada con piscina de cascada y zona chill out invita a disfrutar del clima mediterráneo, creando un auténtico oasis privado. Además, la casa dispone de un garaje cerrado con capacidad para 2 vehículos, trastero y domótica integral, que facilita el día a día. La carpintería exterior en PVC Cortizo con doble acristalamiento Guardian Sun, junto con el aislamiento térmico por sistema SATE, aporta máxima eficiencia energética y confort acústico.

Como elemento distintivo, la propiedad cuenta con una impresionante terraza superior tipo rooftop, amplia y acogedora, que ofrece espectaculares vistas panorámicas de 360 grados, desde donde se puede contemplar la bahía de Palma, el castillo de Bellver y la majestuosa Sierra de Tramuntana. El lugar perfecto para atardeceres inolvidables, cenas al aire libre o simplemente relajarse contemplando el paisaje mallorquín.

Se vende con opción de los muebles aparte y lista para entrar a vivir, para que solo tengas que preocuparte de disfrutarla desde el primer día. Su ubicación es inmejorable: a escasos minutos de Palma, con acceso a colegios internacionales como The Academy, supermercados (Lidl, Mercadona), farmacias, restaurantes locales, zonas de paseo y una de las mejores panaderías de Mallorca, Es Forn.

Casa Weyler es mucho más que una vivienda: es un espacio donde la arquitectura se convierte en hogar, combinando serenidad, diseño y calidad de vida.
Características
Precio Venta 1.099.000 €
Año de construcción 2019
Construidos 241 m2
Parcela 201 m2
Dormitorios 4
Baños 4
Amueblado
Cocina Amueblada
Calefacción Electrica
Trastero
Terraza
Tipo de suelo Parquet
Aire acondicionado
Piscina privada
Piscina comunitaria
Garaje
Calificación Energética (A) VER
Luz
Agua
Vídeos
Ubicación
La dirección del inmueble es aproximada.
Escalas de eficiencia


Eficiencia Emisiones: 33,00
Eficiencia Consumo: 133,00
133
33

Contacta con tu asesor
Mediker Torres
Contáctanos

Si deseas más información sobre esta propiedad, por favor, rellena el formulario.

 Sí, he leído y/o acepto las Condiciones de uso y la Política de privacidad