Bright, centrally located apartment with balcony in Argüelles-Moncloa
Madrid (Moncloa - Aravaca) - REF. 4290
76 m2 2 1 3
sale: 675,000 €
before: 690,000 €
Description

Discover the convenience of living in the Argüelles-Moncloa area, known for its vibrant university life and proximity to Madrid's most iconic green spaces. This third-floor apartment overlooking Juan Álvarez Mendizábal Street and just a few meters from Pintor Rosales offers the perfect combination of residential tranquility and direct access to the city center.


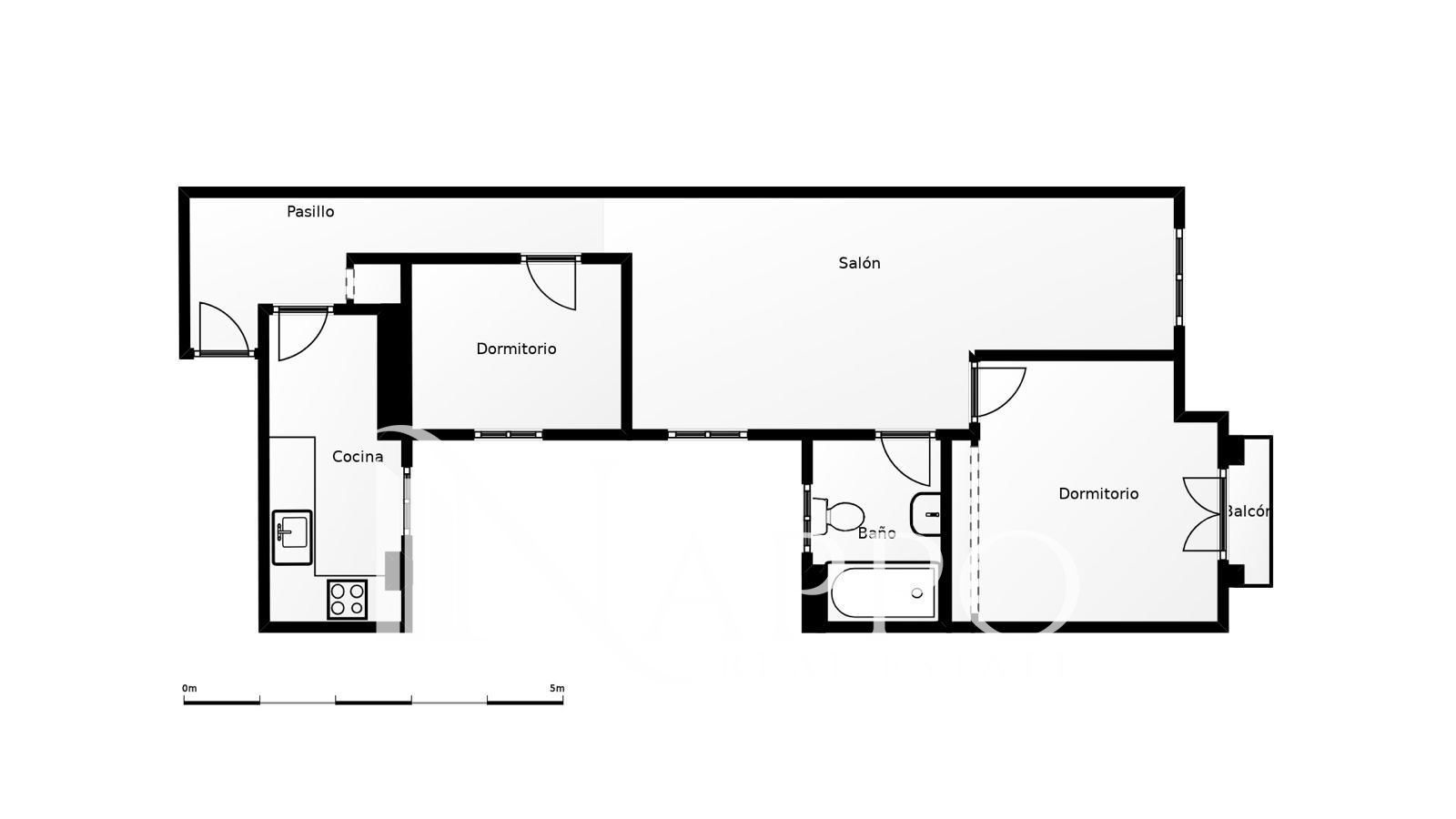
Upon entering, a hallway with a built-in closet leads to a fully equipped kitchen with a large window. Next is a single bedroom, currently used as an office. The next room is a bright living room with high ceilings, a dining area, and a large window overlooking the street. The living room leads to the double bedroom, which has direct access to the balcony, the perfect place for a morning coffee. Next to the master bedroom is a spacious full bathroom with a window.


It has elegant parquet floors, which add warmth to all the rooms. Air conditioning, individual gas heating via radiators, PVC windows, and built-in wooden wardrobes. The building, constructed in 1954, is adapted for people with reduced mobility and has an elevator and a concierge.


The area offers a wide range of shops, services, and restaurants, with excellent metro and transport connections. It enjoys residential tranquility with immediate access to the gardens of Parque del Oeste and the Temple of Debod. An ideal opportunity for investors or as a ready-to-move-in primary residence in one of the most vibrant and well-connected areas of Madrid.


We look forward to seeing you at Nappo Real Estate to schedule a visit!

Features
Sale Price 675,000 €
Construction year 1954
Constructed area 76 m2
Usable floor space 67 m2
Bedrooms 2
Bathrooms 1
Furnished
Heating Gas
Terrace
Floor/Height 3
Condition Good condition
Floor type Parquet
Lift
Air conditioning
Disabled facilities
Energy Rating (E) SHOW
Electricity
Gas
Water
Concierge
Disabled access
Virtual Tour
Videos
Location
The address of the property is approximate.
Efficiency scales


-
-

Contact us

If you want more information about this property, please fill in the form:

 Yes, I have read and/or accept the Terms of use and the Privacy Policy