Karte   |     Datei
Grundstück in Pozuelo mit genehmigtem Projekt für 4 Reihenhäuser
Pozuelo De Alarcón - REF. 4188
verkaufen: 2.000.000 €
Beschreibung

Nappo Real Estate präsentiert dieses exklusive Grundstück, das an das zukünftige ARPO-Gebiet in Pozuelo de Alarcón grenzt, der Gemeinde mit dem höchsten Pro-Kopf-Einkommen in ganz Spanien. Eine strategisch günstige Lage inmitten einer boomenden Gegend, mit hervorragender Anbindung an die M-503 und M-40 und in unmittelbarer Nähe zu erstklassigen Wohngegenden wie La Finca, Somosaguas und Las Encinas.


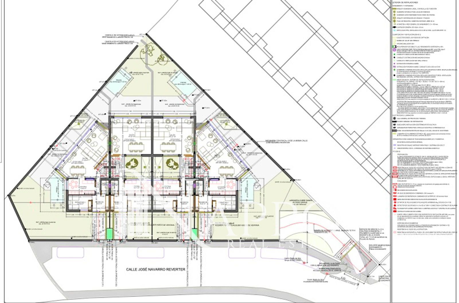
✅ Das Grundstück wird mit genehmigter Baugenehmigung und genehmigtem Projekt verkauft und ist bereit für den Bau einer Wohnanlage mit 4 hochwertigen Reihenhäusern, die sich über mehrere Etagen mit großzügigen, hellen und funktionalen Räumen verteilen.


                           GRUNDSTÜCK (M2).         BEBAUTE FLÄCHE (M2)                 PREIS (€)

1. ECKE                       328                              392                                      2.000.000 - 2.500.000

2. MITTE                     317                              384                                      2.000.000 - 2.500.000

3. MITTE                     317                              384                                      2.000.000 - 2.500.000

4. ECKE                      328                               392                                      2.000.000 - 2.500.000


Hauptmerkmale

Hohe Energieeffizienz (Geothermie, AAA+-Bewertung).

Privater Pool, kleiner Garten, 2 Parkplätze mit Ladestation für Elektroautos, Fahrradabstellplatz und Abstellraum.

6 Schlafzimmer (5 davon mit eigenem Bad) und 7 Badezimmer.

Separate Küche und Wohnzimmer mit Zugang zur Veranda.

Zwei kleine Terrassen im ersten Stock und eine große Terrasse im Dachgeschoss mit Blick auf die Berge von Madrid.

Aufzug optional.

Zeitgenössisches Design mit hochwertigen Materialien.


Gelegenheit für Bauunternehmen / Bauträger / Genossenschaft

Mit genehmigter Lizenz und genehmigtem Projekt kann sofort mit den Bauarbeiten begonnen werden, wodurch Zeit und administrative Risiken reduziert werden. Dies ermöglicht eine zügige Ausführung und den direkten Verkauf von hochwertigen Wohnungen mit starker Nachfrage in einer der aufstrebendsten Gegenden von Pozuelo de Alarcón, 10 Minuten von Madrid entfernt.


Wir erwarten Sie bei Nappo Real Estate für weitere Informationen!

Eigenschaften
Verkaufspreis 2.000.000 €
Preis/m² 1.499
Grundstück 1.334 m2
Standort
Die Lage der Immobilie ist eine ungefähre Angabe.
Effizienzskalen



Wenden Sie sich an Ihren Berater
Juanma Pons (Verkauf)
Kontaktiere uns

Wenn Sie weitere Informationen zu dieser Immobilie wünschen, füllen Sie bitte das folgende Formular aus:

 Ja, ich habe die Nutzungsbedingungen und die Datenschutzerklärung